Kantonales Gymnasium Menzingen
Arbeitsgemeinschaft mit Boegli Kramp Architekten, Freiburg
> mehr Informationen zum Projekt
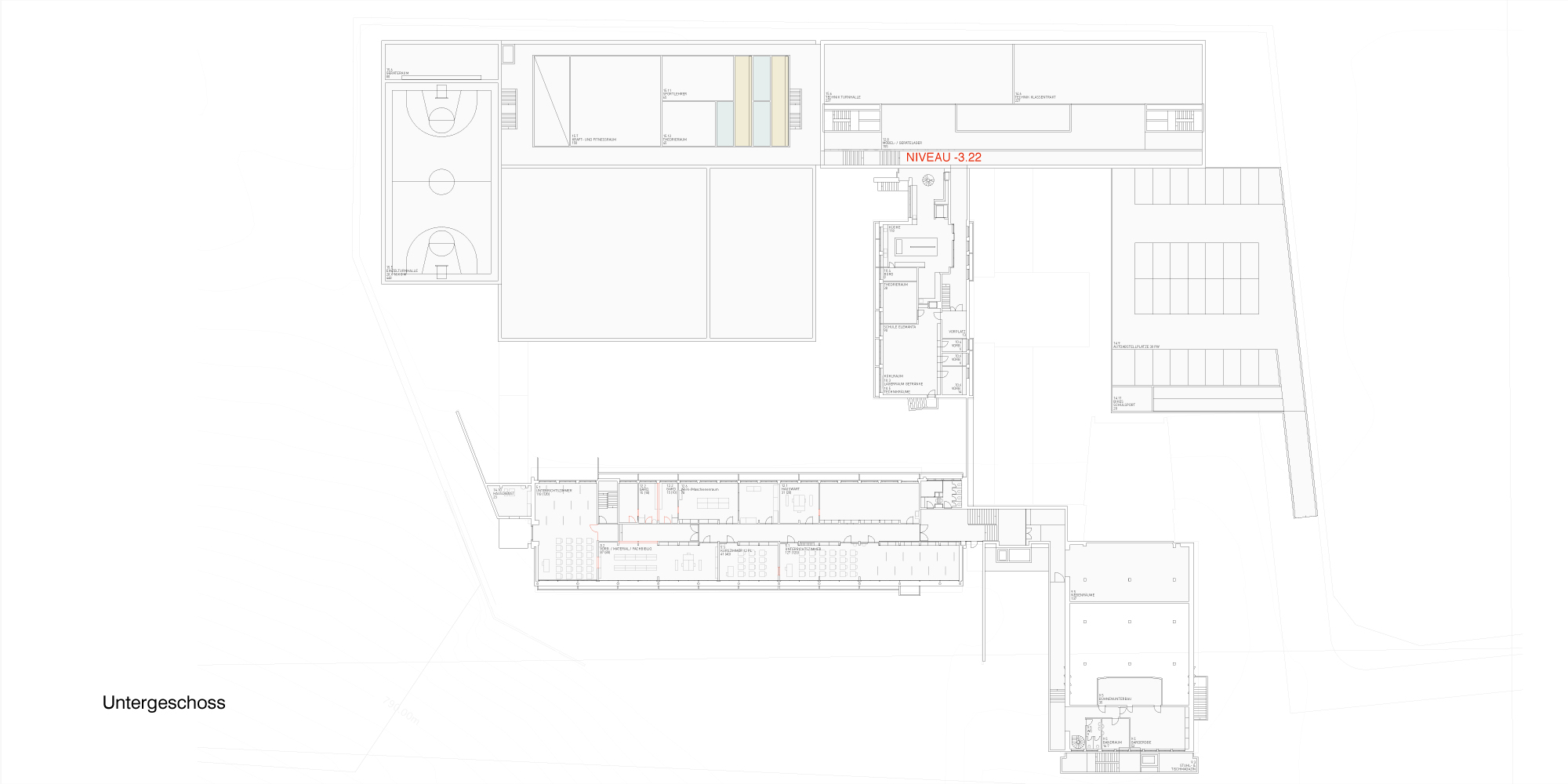
Das vierjährige Gymnasium soll im ehemaligen Lehrerseminar untergebracht werden. Die bestehende Schulanlage ist ein wichtiger baulicher Zeuge aus den späten 1950er-Jahren und steht unter Denkmalschutz. Die Umbaumassnahmen sind mit grösstmöglicher Sensibilität zu erfolgen. Die Schulanlage wird durch eine Doppelturnhalle und einem Ersatzvolumen für die Klassenzimmer ergänzt. Die Sporthalle wurde unterirdisch angeordnet, um die Anlage nicht mit einem grossen Volumen zu stark zu bedrängen. Der Neubau der Klassenzimmer ist neungeschossig und soll sich mit der Ausgestaltung auch von den bestehenden Baukörpern differenzieren. In den bestehenden Bauten werden weitere diverse kleinere Umbauten vorgenommen, um das gewünschte Raumprogramm unterzubringen. Mit der Abgabe der Projektplänen mussten ebenfalls die Erstellungskosten und die Lebenszykluskosten errechnet werden.





